• image01
  • image01

Thứ 6 - 26/02/2016
Màu đỏ Màu xanh nước biển Màu vàng Màu xanh lá cây

Các KCN tại Đồng Nai

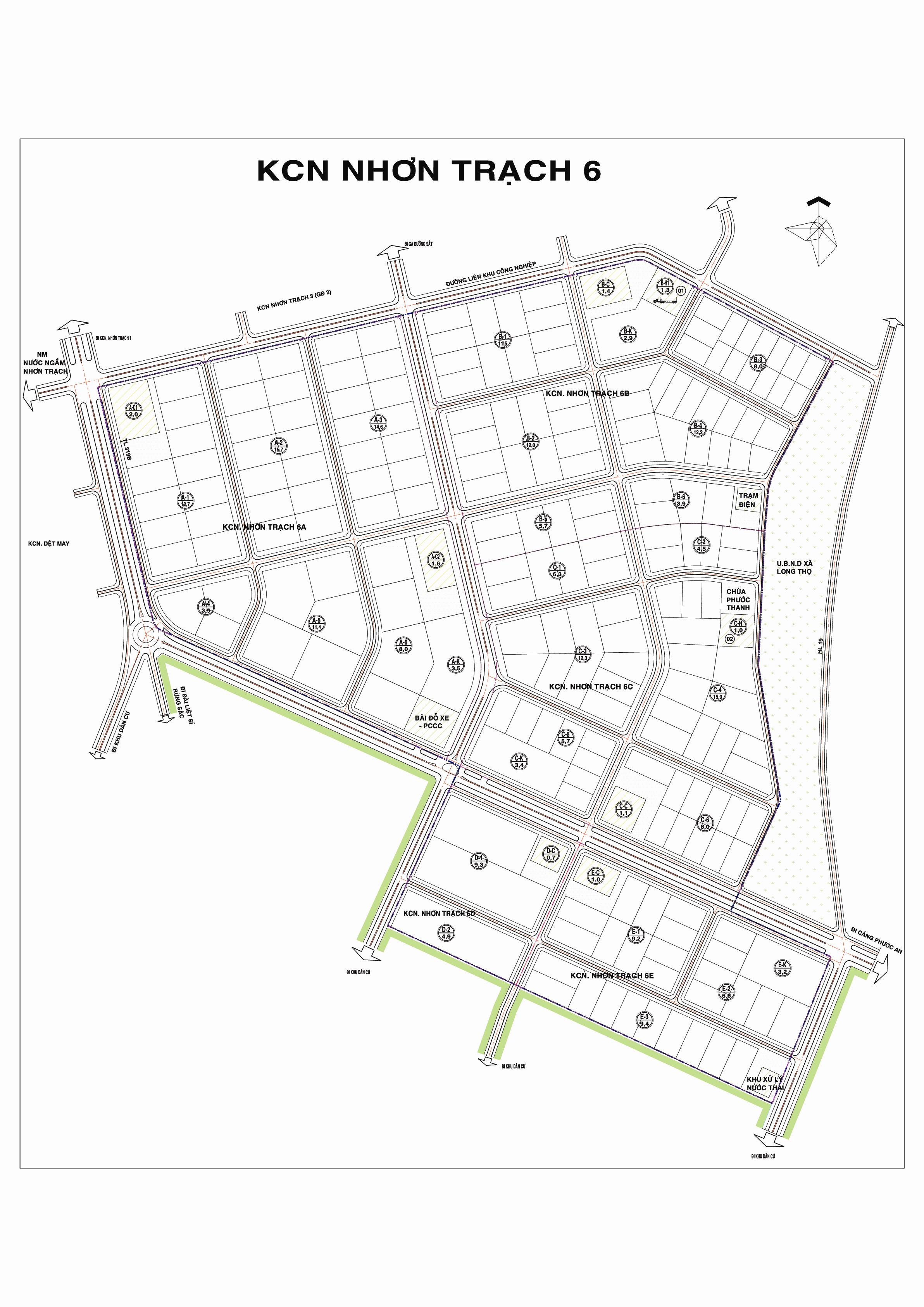
KHU CÔNG NGHIỆP NHƠN TRẠCH VI
Công ty đầu tư hạ tầng:Cty TNHH Đầu tư Xây dựng KCN Nhơn Trạch 6A; Cty CP Tổng Công ty Tín Nghĩa; Cty CP Đầu tư XD và VLXD Sài Gòn
Địa chỉ:KCN Nhơn Trạch VI, huyện Nhơn Trạch, tỉnh Đồng Nai
Phone:0251.3569209
Fax:0251.3569208
Email:nhontrach6ip@gmail.com
Website:
Vị trí:​Xã Long Thọ, huyện Nhơn Trạch, tỉnh Đồng Nai.
Tổng diện tích:
314,23 ha
Tỉ lệ đất đã cho thuê:65,95%
Hạ tầng giao thông:
Hạ tầng cấp điện:từ điện lưới quốc gia.
Hạ tầng cấp nước:từ Nhà máy nước ngầm Nhơn Trạch công suất 10.000 m3/ngày.
Hạ tầng thông tin liên lạc:thuận tiện trong và ngoài nước.
Hạ tầng xử lý nước thải:NM XLNTTT công suất 1.000 m3/ngày đang trong giai đoạn thiết kế.
Ngành nghề thu hút đầu tư:

​- Sản xuất chế biến thực phẩm; sản xuất đồ uống; sản xuất thuốc, hoá dược và dược liệu
- Chế biến gỗ và sản phẩm sản xuất từ gỗ, tre, nứa (trừ giường, tủ, bàn, ghế)
- Sản xuất sản phẩm từ rơm, rạ và vật liệu tết, bện
- Sản xuất hoá chất và sản phẩm hoá chất; dệt; sản xuất trang phục
- Sản xuất da và các sản phẩm có liên quan; sản xuất sản phẩm từ cao su và plastic
- Sản xuất giấy và sản phẩm từ giấy; sản xuât giường, tủ, bàn, ghế
- Công nghiệp chế biến, chế tạo khác; sản xuất máy móc, thiết bị chưa được phân vào đâu; sản xuất xe có động cơ; sản xuất phương tiện vận tải khác; sản xuất sản phẩm từ kim loại đúc sẵn (trừ máy móc, thiết bị)
- Sản xuất sản phẩm điện tử, máy vi tính và sản phẩm quang học; sản xuất sản phẩm từ khoáng phi kim loại khác; sản xuất thiết bị địên.

Các đơn vị sự nghiệp trực thuộc


Tiếp và làm việc với Đoàn công tác thành phố Cockburn, Australia
Tiếp và làm việc với Đoàn công tác thành phố Cockburn, Australia
Tiếp và làm việc với Đoàn công tác thành phố Cockburn, Australia
Tiếp và làm việc với Đoàn công tác thành phố Cockburn, Australia
Tiếp và làm việc với Đoàn công tác thành phố Cockburn, Australia
Tiếp và làm việc với Đoàn công tác thành phố Cockburn, Australia
Xem thêm

Liên kết webiste

Thăm dò ý kiến

Đánh giá về trang thông tin điện tử Ban Quản lý các Khu công nghiệp, Khu kinh tế thành phố Đồng Nai

 

Số lượt truy cập

Save Conflict. Your changes conflict with those made concurrently by another user. If you want your changes to be applied, click Back in your Web browser, refresh the page, and resubmit your changes.Trong ngày:
Tất cả:

BAN QUẢN LÝ CÁC KHU CÔNG NGHIỆP, KHU KINH TẾ 
Địa chỉ: Số 26, đường 2A, KCN Biên Hòa II, phường Trấn Biên, Thành phố​ Đồng Nai.
Điện thoại​: (0251) 3892378 - Fax: (0251) 3892379

Chịu trách nhiệm chính: Ông Phạm Việt Phương - Phó Trưởng ban ​phụ trách
​Cơ quan chủ quản: Ủy ban nhân dân Thành phố Đồng Nai​



Chung nhan Tin Nhiem Mang